|
|
Created by Arielle Bessler
almost 11 years ago
|
|
| Question | Answer |
| Massachusetts State House (1759 - 1797) Charles Bullfinch Boston, MA Federalist/Roman Revival | |
| Virginia State House (1786) Thomas Jefferson Richmond, VA Roman Revival | |
| Monticello (1768-1782, 1796-1809) Thomas Jefferson Charlottesville, VA | |
| University of Virginia (1817-1834) Thomas Jefferson Charlottesville, VA Roman Revival | |
| Second Bank of the United States (1816) William Strickland Philadelphia, PA Greek Revival | |
| Merchant's Exchange 1832-1834 William Strickland Philadelphia, PA Monument of Lysicrates Greek Revival | |
| Dunelith 1856 Natchez, MS Greek Revival | |
| Trinity Church 1841-1846 Richard Upjohn New York, NY Gothic Revival | |
| Biltmore (1890-1895) Richard M. Hunt Ashville, NC French Renaissance | |
| Tribune Building 1873-1895 Richard M. Hunt New York, NY Second Empire | |
| Trinity Church 1872-1877 H.H. Richardson Boston MA Romanesque Revival | |
| Marshall Fields Wholesale Store 1885-1887 H.H. Richardson Chicago, IL | |
| Haughwout Building 1857 John Gaynor New York, NY Cast iron | |
| Monadnock Building 1891-1893 Daniel Burnham & Root Chicago, IL | |
| Fair Building (Chicago School) 1891-1892 William LeBaron Jenney Chicago, IL Steel Frame | |
| Wainwright Building 1890-1891 Dankmar Alder & Louis Sullivan St. Louis, MO High Rise Precedent | |
| Plan of Washington DC 1791 Charles l'Enfant & Ellicot French Influence (Diagonal boulevards & squares) | |
| White House 1792 James Hoban Washington DC | |
| The Capitol 1793 William Thornton Washington DC (Expansion by Thomas U. Walter) | |
| Plan of New York City 1776 & 1811 New York, NY Speculative Grid | |
| World Columbian Exposition 1893 Chicago, IL City Beautiful Movement | |
| City Beautiful Plan for Chicago 1909 Daniel Turnham | |
| Washington DC Plan 1901 Senate Park Commission City Beautiful Movement | |
| San Francisco City Hall 1912-1915 Bakewell and Brown San Francisco, CA | |
| William Morris 1834-1896 Wanted to bring back handmade work and craftsmanship like that of the Middle Ages | |
| Red House 1859 Phillip Webb Bexleyheath, England For Philip Webb | |
| Munstead Wood 1896 Sir Edwin Lutyens Godalming England For Gertrude Jekyll Joined home and garden | |
| Hill House 1903 Charles Rennie Mackintosh Helensburg, Glasgow UK Inspired by Middle Age Scottish Castles | |
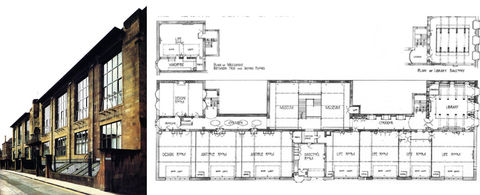
| Glasgow School of Art 1897-1909 Charles Rennie Mackintosh Glasgow UK | |
| Central Park 1857 Olmsead & Vaux New York, NY Inspired by Birkenhead Park, Liverpool | |
| Rotch House 1845 AJ Davis New Bedford, MA Versatile because of decoration | |
| Plan for Riverside 1869-1869 Olmstead & Vaux Riverside, IL | |
| Isaac Bell House 1881-1883 McKim Mead & White Newport, RI Shingle Style | |
| Frank Lloyd Wright | |
| Robie House 1909 Frank Lloyd Wright Oak Park IL Praire Style | |
| Gamble House 1907-1908 Greene & Greene Pasadena, CA | |
| First Church of Christ Scientists 1909-1911 Bernard Maybeck Berkley, CA | |
| Garden City Diagram 1898 Ebenezer Howard | |
| Letchworth Garden City 1902 Parker & Unwin Letchworth, England | |
| Cities Industrielle Project 1917 Tony Garnier | |
| Tassel House 1892-1893 Victor Horta Brussels, Belgium Ironwork, curves, nature | |
| Art Nouveau 1890-1905 | The rejection of Beaux Arts Classicism, belief in total design, plant inspired designs, biomorphic forms & the whiplash curve. Doesn't look like anything done before. |
| Van Eetvelde House 1895-1898 Victor Horta Brussels, Belgium | |
| Furniture Designed by Hector Guimard French Art Nouveau | |
| Metro Stations 1899-1904 Hector Guimard Paris, France Wrought Iron | |
| 25 bis Rue Franklin 1903 Auguste Perret Paris, France Reinforced Concrete | |
| Schwanbarch Bridge 1933 Robert Mailart Switzerland Reinforced concrete | |
| Casa Mila 1905 Antonio Gaudi Barcelona, Spain | |
| Catalan Modernisme 1888-1911 | The desire to raise Catalonian culture to rival the most advanced parts of Europe |
| Sagrada Familia 1884 - 1926 Antonio Gaudi Barcelona, Spain | |
| Secession Gallery 1897-1898 Joseph Maria Olbrich Vienna, Austria | |
| Secession | Questioned the fine arts tradition of the Beaux-Arts and developed ideas about total design |
| Postal Savings Bank n 1904-1906 Otto Wagner Vienna, Austria | |
| Goldman & Salatsch Building (Looshaus) 1910 Adolf Loos Vienna Austria Ornamentation = Crime | |
| Scheu House 1912 Adolf Loos Vienna, Austria | |
| Antonio Sant'Elia | |
| Power Station 1914 Antonio Sant'Elia Importance of electricty | |
| Station for Airplanes and Trains 1914 Antonio Sant'Elia "Futurist City" | |
| Apartment La Citta Nuova 1914 Anotnio Sant'Elia Doesn't hide the elevator | |
| Studies for Purely Architectural Sculpture 1921 Theo van Doesburg and Hans Vogel | |
| Hôtel Particulier 1923 Theo van Doesburg and Cornelis van Eesteren | |
| Counter-Construction 1924 Theo van Doesburg and Cornelis van Eesteren | |
| Compositions 1927 & 1921 Piet Mondrian | |
| Chair 1917 Gerrit Rietveld | |
| Schroeder House 1924 Gerrit Rietveld & Truss Schroeder Utrecht, Holland | |
| German Werkbund | Tried to integrate art and industry at a national level. Included Herman Muthesius and Peter Behrens |
| Fagus Factory 1911-1912 Walter Gropius & Adolf Meyer Alfed an der Leine, Germany | |
| Model Factory 1914 Walter Gropius & Adolf Meyer Werkbund Exhibition, Cologne | |
| AEG Pavilion 1908 Peter Behrens German Shipbuilding Exhibition | |
| AEG Turbine Factory 1908-1909 Peter Behrens Berlin | |
| Glass Pavilion 1914 Bruno Taut Werkbund Exhibition, Cologne Expressionist | |
| Ceska Chair 1928 Marcel Breuer Modern industrial materials are domesticated | |
| Bauhaus Building 1926 Walter Gropius Dessau, Germany Influenced by "pinwheel" Willits House | |
| 3 Principles of International Style | 1) Architecture as volume 2) Regularity over Symmetry 3) Avoidance of applied decoration |
| Friedrichstrasse Skyscraper Project 1921 Mies van der Rohe Berlin, Germany Open, Glass, experimental | |
| Glass skyscraper Project 1922 Mies van der Rohe | |
| Plan of Concrete Country House 1923 Mies van der Rohe | |
| Lessing House 1923 Mies van der Rohe | |
| Brick Country House 1924 Mies van der Rohe | |
| Apartment building 1927 Mies van der Rohe Weissenhofsiedlung Stuttgart, Germany | |
| Weissenhofsiedlung 1927 Mies van der Rohe and others Stuttgart, Germany | |
| German (Barcelona) Pavilion 1929 Mies van der Rohe Barcelona Intetnational Expostition | |
| Barcelona Chair 1929 Mies van der Rohe Barcelona Pavilion | |
| Tugendhat House 1928 - 1930 Mies van der Rohe Brno, Czech Republic | |
| Towards a New Architecture | Le Corbusier First comprehensive modernist books about Architecture Architecture should evolve like technology |
| Domino House 1915 Le Corbusier | |
| Houses 14 & 15 1925 - 1927 Le Corbusier Weissenhofsiedlung Stuttgart, Germany | |
| Five Points of a New Architecture | Le Corbusier 1) Piloti 2) Free Plan 3) Free Facade 4) Horizontal Windows 5) Roof Terrace |
| Four Housing Types 1929 Le Corbusier | |
| Villa Savoye 1929-1931 Le Corbusier Poissy, France All 5 points | |
| Tuberculosis Sanatorium 1929-1931 Alvar Aalto Paimio, Finland | |
| Villa Mairea 1937-1939 Alvar Aalto Noormarkku, Finland | |
| Schindler House and Studio (King's Road) 1922 Rudolph Schindler Los Angeles | |
| Lovell House (Health House) 1929 Richard Neutra Los Angeles, CA | |
| Johnson Wax Building 1936-1937 Frank Lloyd Wright Racine, WI | |
| Kaufmann House (Falling Water) 1936-1938 Frank Lloyd Wright Bear Run, PA | |
| Schuckle Canning Company 1942 William Wurster Sunnycale, CA | |
| Ministry of Education and Health 1937-1943 Lucio Costa Rio de Janeiro, Brazil 5 Points + Curves | |
| Casa do Baile 1942 Oscar Niemeyer Pampulha, Brazil | |
| Okada House 1933 Sutemi Horiguchi Tokyo Japan | |
| Oshima Weather Station 1938 Sutemi Horiguchi | |
| Woolworth Building 1911-1913 Cass Gilbert New York, NY | |
| Chicago Tribune Building 1922-1925 Raymond Hood and John Howells Chicago, IL Gothic | |
| Buildings adapted to 1916 NYC height restrictions Hugh Ferris | |
| Empire State Building 1929-1931 Shreve, Lamb and Harmon New York, NY | |
| Rockefeller Center 1929-1939 by Reinhard & Hofmeister, Harrison & MacMurray, Hood, Godley & Fouilhoux New York, NY | |
| Casa del Fascio 1933-1936 Giuseppe Terragni Como, Italy | |
| Piazza Austo Imperiale Mussolini Rome, Italy | |
| Palace of Italian Civilization 1938-1943 Guerrini, La Padula and Romano Rome, Italy | |
| Party Congress Grounds & Zeppelin Field 1934 Albert Speer Nuremberg, Germany | |
| New Chancellery 1936-1939 Albert Speer Berlin, Germany | |
| Hitler's Berlin Plan North-south axis | |
| Great Hall Albert Speer Berlin, Germany | |
| Jefferson Memorial 1935-1937 John Russell Pope Washington DC | |
| National Gallery of Art 1935-1941 John Russell Pope Washington DC |
Want to create your own Flashcards for free with GoConqr? Learn more.