TOLERANCIAS GEOMÉTRICAS

Description

TOLERANCIAS GEOMÉTRICAS
Nicolás Sanabria Bedoya
Mind Map by Nicolás Sanabria Bedoya, updated more than 1 year ago
Nicolás Sanabria Bedoya
Created by Nicolás Sanabria Bedoya about 9 years ago
416
0

Resource summary

TOLERANCIAS GEOMÉTRICAS
  1. Tolerancias
    1. Tolerancias de forma
      1. Afectan a la forma de una línea o de una superficie
      2. Tolerancias de posición
        1. Indican la tolerancia permitida en la posición relativa elementos en la pieza
        2. Se deben especificar únicamente cuando son esenciales con el fin de asegurar la aceptabilidad y validez de la pieza
          1. Definen la zona teórica dentro de la que debe estar el contenido del elemento
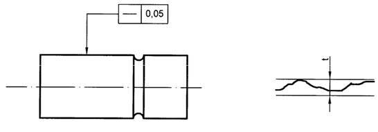
        3. Tolerancia de rectitud
          1. Al proyectar la zona de tolerancia sobre un plano, queda limitada por dos rectas paralelas separadas una distancia t
          2. Tolerancia de planicidad
            1. La zona de tolerancia está limitada por dos planos paralelos separados una distancia t.
            2. Tolerancia de redondez
              1. La zona de tolerancia plana está limitada por dos círculos concéntricos separados una distancia t.
              2. Tolerancia de cilindricidad
                1. La zona de tolerancia está limitada por dos cilindros coaxiales con una diferencia entre radios t.
                2. Tolerancia de forma de una línea
                  1. La zona de tolerancia está limitada por las dos envolventes de círculos de diámetro t
                    1. Tolerancia de forma de una superficie
                      1. La zona de tolerancia está limitada por las dos superficies envolventes de esferas de diámetro t
                      2. Tolerancia de paralelismo
                        1. La zona de tolerancia está definida por dos planos paralelos entre sí y al plano de referencia, separados una distancia t
                        2. Tolerancia de perpendicularidad
                          1. La zona de tolerancia está limitada por un cilindro de diámetro t
                          2. Tolerancia de inclinación
                            1. La zona de tolerancia está limitada por dos planos paralelos separados una distancia t
                            2. Tolerancia de posición
                              1. La zona de tolerancia está limitada por un cilindro de diámetro –t-, cuyo eje está en la posición teórica exacta de la recta controlada, cuando el valor de la tolerancia viene precedido del signo Ø
                              Show full summary Hide full summary

                              Similar

                              Dimensiones y Tolerancias Geométricas
                              Jesus Felix
                              Notas Modelo OSI
                              caro.est1201
                              English
                              filipfrackowiak
                              congress vocab
                              Fernando Carranz
                              Metodo Principiantes - Cubo Rubik
                              Emilio MTZ
                              Revolucion Burguesa
                              Martin Duran Gonzalez
                              L'impérialisme au Congo gael boisvert
                              Gael Thibaudeau-
                              Automotive Auxiliary Electrical Systems
                              Henri Karu
                              MauroZain
                              Mauro Sebastian
                              Clasificacion de empresas
                              MINERVA BRICEL ORTEGA VAZQUEZ