Matemática - 2012

Description

Questões de matemática referentes a prova do Enem de 2012.
Sem Parar
Quiz by Sem Parar, updated more than 1 year ago
Sem Parar
Created by Sem Parar over 10 years ago
110
2

Resource summary

Question 1

Question
O esporte de alta competição da atualidade produziu uma questão ainda sem resposta: Qual é o limite do corpo humano? O maratonista original, o grego da lenda, morreu de fadiga por ter corrido \(42\) quilômetros. O americano Dean Karnazes, cruzando sozinho as planícies da Califórnia, conseguiu correr dez vezes mais em \(75\) horas. Um professor de Educação Física, ao discutir com a turma o texto sobre a capacidade do maratonista americano, desenhou na lousa uma pista reta de \(60\) centímetros, que representaria o percurso referido. [Disponível em: http://veja.abril.com.br. Acesso em: 25 jun. 2011 (adaptado).] Se o percurso de Dean Karnazes fosse também em uma pista reta, qual seria a escala entre a pista feita pelo professor e a percorrida pelo atleta?
Answer
  • \(1:700\)
  • \(1:7 000\)
  • \(1:70 000\)
  • \(1:700 000\)
  • \(1:7 000 000\)

Question 2

Question
O losango representado na Figura 1 foi formado pela união dos centros das quatro circunferências tangentes, de raios de mesma medida. Dobrando-se o raio de duas das circunferências centradas em vértices opostos do losango e ainda mantendo-se a configuração das tangências, obtém-se uma situação conforme ilustrada pela Figura 2. O perímetro do losango da Figura 2, quando comparado ao perímetro do losango da Figura 1, teve um aumento de
Answer
  • \(300\%\).
  • \(200\%\).
  • \(150\%\).
  • \(100\%\).
  • \(50\%\).

Question 3

Question
José, Carlos e Paulo devem transportar em suas bicicletas uma certa quantidade de laranjas. Decidiram dividir o trajeto a ser percorrido em duas partes, sendo que ao final da primeira parte eles redistribuiriam a quantidade de laranjas que cada um carregava dependendo do cansaço de cada um. Na primeira parte do trajeto José, Carlos e Paulo dividiram as laranjas na proporção \(6\) : \(5\) : \(4\), respectivamente. Na segunda parte do trajeto José, Carlos e Paulo dividiram as laranjas na proporção \(4\) : \( 4\) : \(2\), respectivamente. Sabendo-se que um deles levou \(50\) laranjas a mais no segundo trajeto, qual a quantidade de laranjas que José, Carlos e Paulo, nessa ordem, transportaram na segunda parte do trajeto?
Answer
  • \(600\), \(550\), \(350\)
  • \(300\), \(300\), \(150\)
  • \(300\), \(250\), \(200\)
  • \(200\), \(200\), \(100\)
  • \(100\), \(100\), \(50\)

Question 4

Question
Em um blog de variedades, músicas, mantras e informações diversas, foram postados “Contos de Halloween”. Após a leitura, os visitantes poderiam opinar, assinalando suas reações em: “Divertido”, “Assustador” ou “Chato”. Ao fial de uma semana, o blog registrou que \(500\) visitantes distintos acessaram esta postagem. O gráfico a seguir apresenta o resultado da enquete. O administrador do blog irá sortear um livro entre os visitantes que opinaram na postagem “Contos de Halloween”. Sabendo que nenhum visitante votou mais de uma vez, a probabilidade de uma pessoa escolhida ao acaso entre as que opinaram ter assinalado que o conto “Contos de Halloween” é “Chato” é mais aproximada por
Answer
  • \(0,09\).
  • \(0,12\).
  • \(0,14\).
  • \(0,15\).
  • \(0,18\).

Question 5

Question
Arthur deseja comprar um terreno de Cléber, que lhe oferece as seguintes possibilidades de pagamento: • Opção 1: Pagar à vista, por \(R\$\, 55 000,00\); • Opção 2: Pagar a prazo, dando uma entrada de \(R\$\, 30 000,00\), e mais uma prestação de \(R\$\, 26 000,00\) para dali a \(6\) meses. • Opção 3: Pagar a prazo, dando uma entrada de \(R\$\, 20 000,00\), mais uma prestação de \(R\$\, 20 000,00\), para dali a \(6\) meses e outra de \(R\$\, 18 000,00\) para dali a \(12\) meses da data da compra. • Opção 4: Pagar a prazo dando uma entrada de \(R\$\, 15 000,00\) e o restante em \(1\) ano da data da compra, pagando \(R\$\, 39 000,00\). • Opção 5: pagar a prazo, dali a um ano, o valor de \(R\$\, 60 000,00\). Arthur tem o dinheiro para pagar à vista, mas avalia se não seria melhor aplicar o dinheiro do valor à vista (ou até um valor menor) em um investimento, com rentabilidade de \(10\%\) ao semestre, resgatando os valores à medida que as prestações da opção escolhida fossem vencendo. Após avaliar a situação do ponto de vista financeiro e das condições apresentadas, Arthur concluiu que era mais vantajoso financeiramente escolher a opção
Answer
  • \(1\).
  • \(2\).
  • \(3\).
  • \(4\).
  • \(5\).

Question 6

Question
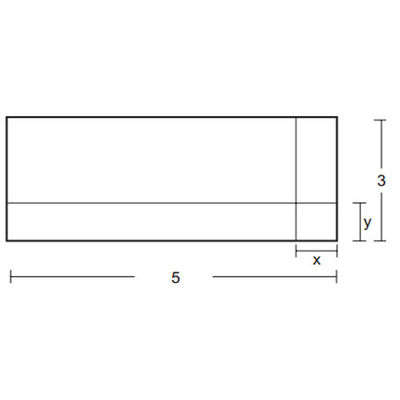
Um forro retangular de tecido traz em sua etiqueta a informação de que encolherá após a primeira lavagem mantendo, entretanto, seu formato. A figura a seguir mostra as medidas originais do forro e o tamanho do encolhimento (\(x\)) no comprimento e (\(y\)) na largura. A expressão algébrica que representa a área do forro após ser lavado é \((5 – x) (3 – y)\). Nestas condições, a área perdida do forro, após a primeira lavagem, será expressa por
Answer
  • \(2xy\)
  • \(15 − 3x\)
  • \(15 − 5y\)
  • \(−5y − 3x\)
  • \(5y + 3x – xy\)

Question 7

Question
A capacidade mínima, em \(BTU/h\), de um aparelho de ar-condicionado, para ambientes sem exposição ao sol, pode ser determinada da seguinte forma: • \(600 BTU/h\) por \(m_{2}\), considerando-se até duas pessoas no ambiente; • para cada pessoa adicional nesse ambiente, acrescentar \(600 BTU/h\); • acrescentar mais \(600 BTU/h\) para cada equipamento eletroeletrônico em funcionamento no ambiente. Será instalado um aparelho de ar-condicionado em uma sala, sem exposição ao sol, de dimensões \(4 m\, \times\, 5 m\), em que permaneçam quatro pessoas e possua um aparelho de televisão em funcionamento. A capacidade mínima, em \(BTU/h\), desse aparelho de ar condicionado deve ser
Answer
  • \(12 000\).
  • \(12 600\).
  • \(13 200\).
  • \(13 800\).
  • \(15 000\).

Question 8

Question
A resistência mecânica \(S\) de uma viga de madeira, em forma de um paralelepípedo retângulo, é diretamente proporcional à sua largura (\(b\)) e ao quadrado de sua altura (\(d\)) e inversamente proporcional ao quadrado da distância entre os suportes da viga, que coincide com o seu comprimento (\(x\)), conforme ilustra a figura. A constante de proporcionalidade \(k\) é chamada de resistência da viga. A expressão que traduz a resistência \(S\) dessa viga de madeira é
Answer
  • \(S = k\times b\times \frac{d^2}{x^2}\)
  • \(S = k\times b\times \frac{d}{x^2}\)
  • \(S = k\times b\times \frac{d^2}{x}\)
  • \(S = k\times b^2 \times \frac{d}{x}\)
  • \(S = k\times b\times \frac{2d}{2x}\)

Question 9

Question
O diretor de uma escola convidou os \(280\) alunos de terceiro ano a participarem de uma brincadeira. Suponha que existem \(5\) objetos e \(6\) personagens numa casa de \(9\) cômodos; um dos personagens esconde um dos objetos em um dos cômodos da casa. O objetivo da brincadeira é adivinhar qual objeto foi escondido por qual personagem e em qual cômodo da casa o objeto foi escondido. Todos os alunos decidiram participar. A cada vez um aluno é sorteado e dá a sua resposta. As respostas devem ser sempre distintas das anteriores, e um mesmo aluno não pode ser sorteado mais de uma vez. Se a resposta do aluno estiver correta, ele é declarado vencedor e a brincadeira é encerrada. O diretor sabe que algum aluno acertará a resposta porque há
Answer
  • \(10\) alunos a mais do que possíveis respostas distintas.
  • \(20\) alunos a mais do que possíveis respostas distintas.
  • \(119\) alunos a mais do que possíveis respostas distintas.
  • \(260\) alunos a mais do que possíveis respostas distintas.
  • \(270\) alunos a mais do que possíveis respostas distintas.

Question 10

Question
Um biólogo mediu a altura de cinco árvores distintas e representou-as em uma mesma malha quadriculada, utilizando escalas diferentes, conforme indicações na figura a seguir. Qual é a árvore que apresenta a maior altura real?
Answer
  • \(I\)
  • \(II\)
  • \(III\)
  • \(IV\)
  • \(V\)

Question 11

Question
Em um jogo há duas urnas com \(10\) bolas de mesmo tamanho em cada urna. A tabela a seguir indica as quantidades de bolas de cada cor em cada urna. Uma jogada consiste em: 1º) o jogador apresenta um palpite sobre a cor da bola que será retirada por ele da urna \(2\); 2º) ele retira, aleatoriamente, uma bola da urna \(1\) e a coloca na urna \(2\), misturando-a com as que lá estão; 3º) em seguida ele retira, também aleatoriamente, uma bola da urna \(2\); 4º) se a cor da última bola retirada for a mesma do palpite inicial, ele ganha o jogo. Qual cor deve ser escolhida pelo jogador para que ele tenha a maior probabilidade de ganhar?
Answer
  • Azul
  • Amarela
  • Branca
  • Verde
  • Vermelha

Question 12

Question
Os hidrômetros são marcadores de consumo de água em residências e estabelecimentos comerciais. Existem vários modelos de mostradores de hidrômetros, sendo que alguns deles possuem uma combinação de um mostrador e dois relógios de ponteiro. O número formado pelos quatro primeiros algarismos do mostrador fornece o consumo em \(m^3\), e os dois últimos algarismos representam, respectivamente, as centenas e dezenas de litros de água consumidos. Um dos relógios de ponteiros indica a quantidade em litros, e o outro em décimos de litros, conforme ilustrados na figura a seguir. Considerando as informações indicadas na figura, o consumo total de água registrado nesse hidrômetro, em litros, é igual a
Answer
  • \(3\, 534,85\).
  • \(3\, 544,20\).
  • \(3\, 534\, 850,00\).
  • \(3\, 534\, 859,35\).
  • \(3\, 534\, 850,39\).

Question 13

Question
O dono de uma farmácia resolveu colocar à vista do público o gráfico mostrado a seguir, que apresenta a evolução do total de vendas (em Reais) de certo medicamento ao longo do ano de 2011. De acordo com o gráfico, os meses em que ocorreram, respectivamente, a maior e a menor venda absolutas em 2011 foram
Answer
  • março e abril.
  • março e agosto.
  • agosto e setembro.
  • junho e setembro.
  • junho e agosto.

Question 14

Question
Maria quer inovar em sua loja de embalagens e decidiu vender caixas com diferentes formatos. Nas imagens apresentadas estão as planificações dessas caixas. Quais serão os sólidos geométricos que Maria obterá a partir dessas planificações?
Answer
  • Cilindro, prisma de base pentagonal e pirâmide.
  • Cone, prisma de base pentagonal e pirâmide.
  • Cone, tronco de pirâmide e pirâmide.
  • Cilindro, tronco de pirâmide e prisma.
  • Cilindro, prisma e tronco de cone.

Question 15

Question
Jogar baralho é uma atividade que estimula o raciocínio. Um jogo tradicional é a Paciência, que utiliza \(52\) cartas. Inicialmente são formadas sete colunas com as cartas. A primeira coluna tem uma carta, a segunda tem duas cartas, a terceira tem três cartas, a quarta tem quatro cartas, e assim sucessivamente até a sétima coluna, a qual tem sete cartas, e o que sobra forma o monte, que são as cartas não utilizadas nas colunas. A quantidade de cartas que forma o monte é
Answer
  • \(21\).
  • \(24\).
  • \(26\).
  • \(28\).
  • \(31\).

Question 16

Question
O gráfico mostra a variação da extensão média de gelo marítimo, em milhões de quilômetros quadrados, comparando dados dos anos \(1995,\, 1998,\, 2000,\, 2005\) e \(2007\). Os dados correspondem aos meses de junho a setembro. O Ártico começa a recobrar o gelo quando termina o verão, em meados de setembro. O gelo do mar atua como o sistema de resfriamento da Terra, refletindo quase toda a luz solar de volta ao espaço. Águas de oceanos escuros, por sua vez, absorvem a luz solar e reforçam o aquecimento do Ártico, ocasionando derretimento crescente do gelo. Com base no gráfico e nas informações do texto, é possível inferir que houve maior aquecimento global em
Answer
  • \(1995\).
  • \(1998\).
  • \(2000\).
  • \(2005\).
  • \(2007\).

Question 17

Question
Em exposições de artes plásticas, é usual que estátuas sejam expostas sobre plataformas giratórias. Uma medida de segurança é que a base da escultura esteja integralmente apoiada sobre a plataforma. Para que se providencie o equipamento adequado, no caso de uma base quadrada que será fiada sobre uma plataforma circular, o auxiliar técnico do evento deve estimar a medida \(R\) do raio adequado para a plataforma em termos da medida L do lado da base da estátua. Qual relação entre R e L o auxiliar técnico deverá apresentar de modo que a exigência de segurança seja cumprida?
Answer
  • \(R\geq \frac{L}{\sqrt{2}}\)
  • \(R\geq \frac{2L}{\sqrt{\pi}}\)
  • \(R\geq \frac{L}{\sqrt{\pi}}\)
  • \(R\geq \frac{L}{2}\)
  • \(R\geq \frac{L}{2\sqrt{2}}\)

Question 18

Question
O globo da morte é uma atração muito usada em circos. Ele consiste em uma espécie de jaula em forma de uma superfície esférica feita de aço, onde motoqueiros andam com suas motos por dentro. A seguir, tem-se, na Figura 1, uma foto de um globo da morte e, na Figura 2, uma esfera que ilustra um globo da morte. Na Figura 2, o ponto \(A\) está no plano do chão onde está colocado o globo da morte e o segmento \(AB\) passa pelo centro da esfera e é perpendicular ao plano do chão. Suponha que há um foco de luz direcionado para o chão colocado no ponto \(B\) e que um motoqueiro faça um trajeto dentro da esfera, percorrendo uma circunferência que passa pelos pontos \(A\) e \(B\). A imagem do trajeto feito pelo motoqueiro no plano do chão é melhor representada por

Question 19

Question
Num projeto da parte elétrica de um edifício residencial a ser construído, consta que as tomadas deverão ser colocadas a \(0,20 m\) acima do piso, enquanto os interruptores de luz deverão ser colocados a \(1,47 m\) acima do piso. Um cadeirante, potencial comprador de um apartamento desse edifício, ao ver tais medidas, alerta para o fato de que elas não contemplarão suas necessidades. Os referenciais de alturas (em metros) para atividades que não exigem o uso de força são mostrados na figura seguinte. Uma proposta substitutiva, relativa às alturas de tomadas e interruptores, respectivamente, que atenderá àquele potencial comprador é
Answer
  • \(0,20 m\) e \(1,45 m\).
  • \(0,20 m\) e \(1,40 m\).
  • \(0,25 m\) e \(1,35 m\).
  • \(0,25 m\) e \(1,30 m\).
  • \(0,45 m\) e \(1,20 m\).

Question 20

Question
Uma pesquisa realizada por estudantes da Faculdade de Estatística mostra, em horas por dia, como os jovens entre 12 e 18 anos gastam seu tempo, tanto durante a semana (de segunda-feira a sexta-feira), como no fim de semana (sábado e domingo). A seguinte tabela ilustra os resultados da pesquisa. De acordo com esta pesquisa, quantas horas de seu tempo gasta um jovem entre 12 e 18 anos, na semana inteira (de segunda-feira a domingo), nas atividades escolares?
Answer
  • \(20\)
  • \(21\)
  • \(24\)
  • \(25\)
  • \(27\)

Question 21

Question
Certo vendedor tem seu salário mensal calculado da seguinte maneira: ele ganha um valor fixo de \(R\$\, 750,00\), mais uma comissão de \(R\$\, 3,00\) para cada produto vendido. Caso ele venda mais de \(100\) produtos, sua comissão passa a ser de \(R\$\, 9,00\) para cada produto vendido, a partir do 101º produto vendido. Com essas informações, o gráfico que melhor representa a relação entre salário e o número de produtos vendidos é

Question 22

Question
Um maquinista de trem ganha \(R\$\, 100,00\) por viagem e só pode viajar a cada \(4\) dias. Ele ganha somente se fizer a viagem e sabe que estará de férias de 1º a 10 de junho, quando não poderá viajar. Sua primeira viagem ocorreu no dia primeiro de janeiro. Considere que o ano tem \(365\) dias. Se o maquinista quiser ganhar o máximo possível, quantas viagens precisará fazer?
Answer
  • \(37\)
  • \(51\)
  • \(88\)
  • \(89\)
  • \(91\)

Question 23

Question
Alguns objetos, durante a sua fabricação, necessitam passar por um processo de resfriamento. Para que isso ocorra, uma fábrica utiliza um tanque de resfriamento, como mostrado na figura. O que aconteceria com o nível da água se colocássemos no tanque um objeto cujo volume fosse de \(2 400 cm^{3}\)?
Answer
  • O nível subiria \(0,2 cm\), fazendo a água fiar com \(20,2 cm\) de altura.
  • O nível subiria \(1 cm\), fazendo a água ficar com \(21 cm\) de altura.
  • O nível subiria \(2 cm\), fazendo a água ficar com \(22 cm\) de altura.
  • O nível subiria \(8 cm\), fazendo a água transbordar.
  • O nível subiria \(20 cm\), fazendo a água transbordar.

Question 24

Question
Jorge quer instalar aquecedores no seu salão de beleza para melhorar o conforto dos seus clientes no inverno. Ele estuda a compra de unidades de dois tipos de aquecedores: modelo \(A\), que consome \(600 g/h\) (gramas por hora) de gás propano e cobre \(35 m^2\) de área, ou modelo \(B\), que consome \(750 g/h\) de gás propano e cobre \(45 m^2\) de área. O fabricante indica que o aquecedor deve ser instalado em um ambiente com área menor do que a da sua cobertura. Jorge vai instalar uma unidade por ambiente e quer gastar o mínimo possível com gás. A área do salão que deve ser climatizada encontra-se na planta seguinte (ambientes representados por três retângulos e um trapézio). Avaliando-se todas as informações, serão necessários
Answer
  • quatro unidades do tipo \(A\) e nenhuma unidade do tipo \(B\).
  • três unidades do tipo \(A\) e uma unidade do tipo \(B\).
  • duas unidades do tipo \(A\) e duas unidades do tipo \(B\).
  • uma unidade do tipo \(A\) e três unidades do tipo \(B\).
  • nenhuma unidade do tipo \(A\) e quatro unidades do tipo \(B\).

Question 25

Question
Para decorar a fachada de um edifício, um arquiteto projetou a colocação de vitrais compostos de quadrados de lado medindo \(1 m\), conforme a figura a seguir. Nesta fiura, os pontos \(A\), \(B\), \(C\) e \(D\) são pontos médios dos lados do quadrado e os segmentos \(AP\) e \(QC\) medem \(1/4\) da medida do lado do quadrado. Para confeccionar um vitral, são usados dois tipos de materiais: um para a parte sombreada da fiura, que custa \(R\$\, 30,00\) o (m^2\), e outro para a parte mais clara (regiões \(ABPDA\) e \(BCDQB\)), que custa \(R\$\, 50,00\) o \(m^2\). De acordo com esses dados, qual é o custo dos materiais usados na fabricação de um vitral?
Answer
  • \(R\$ \,22,50\)
  • \(R\$ \,35,00\)
  • \(R\$ \,40,00\)
  • \(R\$ \,42,50\)
  • \(R\$\, 45,00\)

Question 26

Question
João decidiu contratar os serviços de uma empresa por telefone através do SAC (Serviço de Atendimento ao Consumidor). O atendente ditou para João o número de protocolo de atendimento da ligação e pediu que ele anotasse. Entretanto, João não entendeu um dos algarismos ditados pelo atendente e anotou o número \(\underline{1}\, \underline{3} \,\underline{\,\,\,}\, \underline{9} \,\underline{8}\, \underline{2} \,\underline{0}\), sendo que o espaço vazio é o do algarismo que João não entendeu. De acordo com essas informações, a posição ocupada pelo algarismo que falta no número de protocolo é a de
Answer
  • centena.
  • dezena de milhar.
  • centena de milhar.
  • milhão.
  • centena de milhão.

Question 27

Question
O gráfico fornece os valores das ações da empresa XPN , no período das 10 às 17 horas, num dia em que elas oscilaram acentuadamente em curtos intervalos de tempo.Neste dia, cinco investidores compraram e venderam o mesmo volume de ações, porém em horários diferentes, de acordo com a seguinte tabela. Com relação ao capital adquirido na compra e venda das ações, qual investidor fez o melhor negócio?
Answer
  • \(1\)
  • \(2\)
  • \(3\)
  • \(4\)
  • \(5\)

Question 28

Question
A figura a seguir apresenta dois gráficos com informações sobre as reclamações diárias recebidas e resolvidas pelo Setor de Atendimento ao Cliente (SAC) de uma empresa, em uma dada semana. O gráfico de linha tracejada informa o número de reclamações recebidas no dia, o de linha contínua é o número de reclamações resolvidas no dia. As reclamações podem ser resolvidas no mesmo dia ou demorarem mais de um dia para serem resolvidas. O gerente de atendimento deseja identificar os dias da semana em que o nível de eficiência pode ser considerado muito bom, ou seja, os dias em que o número de reclamações resolvidas excede o número de reclamações recebidas. O gerente de atendimento pôde concluir, baseado no conceito de eficiência utilizado na empresa e nas informações do gráfico, que o nível de eficiência foi muito bom na
Answer
  • segunda e na terça-feira.
  • terça e na quarta-feira.
  • terça e na quinta-feira.
  • quinta-feira, no sábado e no domingo.
  • segunda, na quinta e na sexta-feira.

Question 29

Question
Uma mãe recorreu à bula para verificar a dosagem de um remédio que precisava dar a seu filho. Na bula, recomendava-se a seguinte dosagem: \(5\) gotas para cada \(2 kg\) de massa corporal a cada \(8\) horas. Se a mãe ministrou corretamente \(30\) gotas do remédio a seu filho a cada \(8\) horas, então a massa corporal dele é de
Answer
  • \(12 kg\).
  • \(16 kg\).
  • \(24 kg\).
  • \(36 kg\).
  • \(75 kg\).

Question 30

Question
João propôs um desafio a Bruno, seu colega de classe: ele iria descrever um deslocamento pela pirâmide a seguir e Bruno deveria desenhar a projeção desse deslocamento no plano da base da pirâmide. O deslocamento descrito por João foi: mova-se pela pirâmide, sempre em linha reta, do ponto \(A\) ao ponto \(E\), a seguir do ponto \(E\) ao ponto \(M\), e depois de \(M\) a \(C\). O desenho que Bruno deve fazer é

Question 31

Question
As curvas de oferta e de demanda de um produto representam, respectivamente, as quantidades que vendedores e consumidores estão dispostos a comercializar em função do preço do produto. Em alguns casos, essas curvas podem ser representadas por retas. Suponha que as quantidades de oferta e de demanda de um produto sejam, respectivamente, representadas pelas equações: \[Q_{O} = -20+4P\] \[Q_{D} = 46-2P\] em que \(Q_{O}\) é quantidade de oferta, \(Q_{D}\) é a quantidade de demanda e \(P\) é o preço do produto. A partir dessas equações, de oferta e de demanda, os economistas encontram o preço de equilíbrio de mercado, ou seja, quando \(Q_{O}\) e \(Q_{D}\) se igualam. Para a situação descrita, qual o valor do preço de equilíbrio?
Answer
  • \(5\)
  • \(11\)
  • \(13\)
  • \(23\)
  • \(33\)

Question 32

Question
Nos shopping centers costumam existir parques com vários brinquedos e jogos. Os usuários colocam créditos em um cartão, que são descontados por cada período de tempo de uso dos jogos. Dependendo da pontuação da criança no jogo, ela recebe um certo número de tíquetes para trocar por produtos nas lojas dos parques. Suponha que o período de uso de um brinquedo em certo shopping custa \(R\$\, 3,00\) e que uma bicicleta custa \(9 200\) tíquetes. Para uma criança que recebe \(20\) tíquetes por período de tempo que joga, o valor, em reais, gasto com créditos para obter a quantidade de tíquetes para trocar pela bicicleta é
Answer
  • \(153\).
  • \(460\).
  • \(1 218\).
  • \(1 380\).
  • \(3 066\).

Question 33

Question
Dentre outros objetos de pesquisa, a Alometria estuda a relação entre medidas de diferentes partes do corpo humano. Por exemplo, segundo a Alometria, a área \(A\) da superfície corporal de uma pessoa relaciona-se com a sua massa \(m\) pela fórmula \(A = k\times m^{2/3}\) em que k é uma constante positiva. Se no período que vai da infância até a maioridade de um indivíduo sua massa é multiplicada por \(8\), por quanto será multiplicada a área da superfície corporal?
Answer
  • \(\sqrt[3]{16}\)
  • \(4\)
  • \(\sqrt{24}\)
  • \(8\)
  • \(64\)

Question 34

Question
Um aluno registrou as notas bimestrais de algumas de suas disciplinas numa tabela. Ele observou que as entradas numéricas da tabela formavam uma matriz \(4\times 4\), e que poderia calcular as médias anuais dessas disciplinas usando produto de matrizes. Todas as provas possuíam o mesmo peso, e a tabela que ele conseguiu é mostrada a seguir. Para obter essas médias, ele multiplicou a matriz obtida a partir da tabela por
Answer
  • \(\begin{bmatrix} \frac{1}{2} & \frac{1}{2} & \frac{1}{2} & \frac{1}{2} \end{bmatrix}\)
  • \(\begin{bmatrix} \frac{1}{4} & \frac{1}{4} & \frac{1}{4} & \frac{1}{4} \end{bmatrix}\)
  • \( \begin{bmatrix} 1\\ 1\\ 1\\ 1 \end{bmatrix}\)
  • \( \begin{bmatrix} \frac{1}{2}\\ \frac{1}{2}\\ \frac{1}{2}\\ \frac{1}{2} \end{bmatrix}\)
  • \begin{bmatrix} \frac{1}{4}\\ \frac{1}{4}\\ \frac{1}{4}\\ \frac{1}{4} \end{bmatrix}

Question 35

Question
Existem no mercado chuveiros elétricos de diferentes potências, que representam consumos e custos diversos. A potência (\(P\)) de um chuveiro elétrico é dada pelo produto entre sua resistência elétrica (\(R\)) e o quadrado da corrente elétrica (\(i\)) que por ele circula. O consumo de energia elétrica (\(E\)), por sua vez, é diretamente proporcional à potência do aparelho. Considerando as características apresentadas, qual dos gráficos a seguir representa a relação entre a energia consumida (\(E\)) por um chuveiro elétrico e a corrente elétrica (\(i\)) que circula por ele?

Question 36

Question
Em 20 de fevereiro de 2011 ocorreu a grande erupção do vulcão Bulusan nas Filipinas. A sua localização geografia no globo terrestre é dada pelo GPS (sigla em inglês para Sistema de Posicionamento Global) com longitude de \(124^{\circ} \, 3’ \, 0”\) a leste do Meridiano de Greenwich. Dado: \(1°\) equivale a \(60’\) e \(1’\) equivale a \(60”\). A representação angular da localização do vulcão com relação a sua longitude na forma decimal é
Answer
  • \(124,02^{\circ}\).
  • \(124,05^{\circ}\).
  • \(124,20^{\circ}\).
  • \(124,30^{\circ}\).
  • \(124,50^{\circ}\).

Question 37

Question
A Agência Espacial Norte Americana (NASA) informou que o asteroide YU 55 cruzou o espaço entre a Terra e a Lua no mês de novembro de 2011. A ilustração a seguir sugere que o asteroide percorreu sua trajetória no mesmo plano que contém a órbita descrita pela Lua em torno da Terra. Na figura, está indicada a proximidade do asteroide em relação à Terra, ou seja, a menor distância que ele passou da superfície terrestre. Com base nessas informações, a menor distância que o asteroide YU 55 passou da superfície da Terra é igual a
Answer
  • \(3,25 \times 10^2 km\).
  • \(3,25 \times 10^3 km\).
  • \(3,25 \times 10^4 km\).
  • \(3,25 \times 10^5 km\).
  • \(3,25 \times 10^6 km\).

Question 38

Question
Há, em virtude da demanda crescente de economia de água, equipamentos e utensílios como, por exemplo, as bacias sanitárias ecológicas, que utilizam 6 litros de água por descarga em vez dos \(15\) litros utilizados por bacias sanitárias não ecológicas, conforme dados da Associação Brasileira de Normas Técnicas (ABNT). Qual será a economia diária de água obtida por meio da substituição de uma bacia sanitária não ecológica, que gasta cerca de \(60\) litros por dia com a descarga, por uma bacia sanitária ecológica?
Answer
  • \(24\) litros
  • \(36\) litros
  • \(40\) litros
  • \(42\) litros
  • \(50\) litros

Question 39

Question
A tabela a seguir mostra a evolução da receita bruta anual nos três últimos anos de cinco microempresas (ME) que se encontram à venda. Um investidor deseja comprar duas das empresas listadas na tabela. Para tal, ele calcula a média da receita bruta anual dos últimos três anos (de 2009 até 2011) e escolhe as duas empresas de maior média anual. As empresas que este investidor escolhe comprar são
Answer
  • Balas \(W\) e Pizzaria \(Y\).
  • Chocolates \(X\) e Tecelagem \(Z\).
  • Pizzaria \(Y\) e Alfinetes \(V\).
  • Pizzaria \(Y\) e Chocolates \(X\).
  • Tecelagem \(Z\) e Alfinetes \(V\).

Question 40

Question
Um laboratório realiza exames em que é possível observar a taxa de glicose de uma pessoa. Os resultados são analisados de acordo com o quadro a seguir. Um paciente fez um exame de glicose nesse laboratório e comprovou que estava com hiperglicemia. Sua taxa de glicose era de \(300 mg/dL\). Seu médico prescreveu um tratamento em duas etapas. Na primeira etapa ele conseguiu reduzir sua taxa em \(30\%\) e na segunda etapa em \(10\%\). Ao calcular sua taxa de glicose após as duas reduções, o paciente verificou que estava na categoria de
Answer
  • hipoglicemia.
  • normal.
  • pré-diabetes.
  • diabetes melito.
  • hiperglicemia.

Question 41

Question
Um produtor de café irrigado em Minas Gerais recebeu um relatório de consultoria estatística, constando, entre outras informações, o desvio padrão das produções de uma safra dos talhões de sua propriedade. Os talhões têm a mesma área de \(30\, 000 m^2\) e o valor obtido para o desvio padrão foi de \(90 kg/talhão\). O produtor deve apresentar as informações sobre a produção e a variância dessas produções em sacas de \(60 kg\) por hectare (\(10 000 m^2\)). A variância das produções dos talhões expressa em \((sacas/hectares)^2\) é
Answer
  • \(20,25\).
  • \(4,50\).
  • \(0,71\).
  • \(0,50\).
  • \(0,25\).

Question 42

Question
O designer português Miguel Neiva criou um sistema de símbolos que permite que pessoas daltônicas identifiquem cores. O sistema consiste na utilização de símbolos que identificam as cores primárias (azul, amarelo e vermelho). Além disso, a justaposição de dois desses símbolos permite identificar cores secundárias (como o verde, que é o amarelo combinado com o azul). O preto e o branco são identificados por pequenos quadrados: o que simboliza o preto é cheio, enquanto o que simboliza o branco é vazio. Os símbolos que representam preto e branco também podem estar associados aos símbolos que identificam cores, significando se estas são claras ou escuras. [Folha de São Paulo. Disponível em: www1.folha.uol.com.br. Acesso em: 18 fev. 2012 (adaptado)] De acordo com o texto, quantas cores podem ser representadas pelo sistema proposto?
Answer
  • \(14\)
  • \(18\)
  • \(20\)
  • \(21\)
  • \(23\)

Question 43

Question
José, Paulo e Antônio estão jogando dados não viciados, nos quais, em cada uma das seis faces, há um número de \(1\) a \(6\). Cada um deles jogará dois dados simultaneamente. José acredita que, após jogar seus dados, os números das faces voltadas para cima lhe darão uma soma igual a \(7\). Já Paulo acredita que sua soma será igual a \(4\) e Antônio acredita que sua soma será igual a \(8\). Com essa escolha, quem tem a maior probabilidade de acertar sua respectiva soma é
Answer
  • Antônio, já que sua soma é a maior de todas as escolhidas.
  • José e Antônio, já que há \(6\) possibilidades tanto para a escolha de José quanto para a escolha de Antônio, e há apenas \(4\) possibilidades para a escolha de Paulo.
  • José e Antônio, já que há \(3\) possibilidades tanto para a escolha de José quanto para a escolha de Antônio, e há apenas \(2\) possibilidades para a escolha de Paulo.
  • José, já que há \(6\) possibilidades para formar sua soma, \(5\) possibilidades para formar a soma de Antônio e apenas \(3\) possibilidades para formar a soma de Paulo.
  • Paulo, já que sua soma é a menor de todas.

Question 44

Question
O gráfico apresenta o comportamento de emprego formal surgido, segundo o CAGED, no período de janeiro de 2010 a outubro de 2010. Com base no gráfico, o valor da parte inteira da mediana dos empregos formais surgidos no período é
Answer
  • \(212\, 952\).
  • \(229\, 913\).
  • \(240\, 621\).
  • \(255\, 496\).
  • \(298\, 041\).

Question 45

Question
A cerâmica possui a propriedade da contração, que consiste na evaporação da água existente em um conjunto ou bloco cerâmico submetido a uma determinada temperatura elevada: em seu lugar aparecendo “espaços vazios” que tendem a se aproximar. No lugar antes ocupado pela água vão fiando lacunas e, consequentemente, o conjunto tende a retrair-se. Considere que no processo de cozimento a cerâmica de argila sofra uma contração, em dimensões lineares, de \(20\%\). [Disponível em: www.arq.ufsc.br. Acesso em: 30 mar. 2012 (adaptado).] Levando em consideração o processo de cozimento e a contração sofrida, o volume \(V\) de uma travessa de argila, de forma cúbica de aresta a, diminui para um valor que é
Answer
  • \(20\%\) menor que \(V\), uma vez que o volume do cubo é diretamente proporcional ao comprimento de seu lado.
  • \(36\%\) menor que \(V\), porque a área da base diminui de \(a^2\) para \( ((1-0,2)\times a)^2\) .
  • \(48,8\%\) menor que \(V\), porque o volume diminui de \(a^3\) para \((0,8\times a)^3\).
  • \(51,2\%\) menor que \(V\), porque cada lado diminui para \(80\%\) do comprimento original.
  • \(60\%\) menor que \(V\), porque cada lado diminui \(20\%\).
Show full summary Hide full summary

Similar

Simulado ENEM - Matemática
Nathalia - GoConqr
Simulado Matemática
Marina Faria
Simulado de Matemática
Alessandra S.
SIMULADO IBGE 2016 - Matemática - Probabilidade
Alex Farias
Conhecimentos Geométricos
Sem Parar
Conhecimentos algébricos/geométricos
Sem Parar
Matemática - 2014
Sem Parar
Física - 2013
Sem Parar
Tabuada
Alessandra S.
Matemática Básica
Alessandra S.
Geometria Plana
Bruno Fernandes3682